

We’ve known for some time that lots of new housing is coming to the block of Cesar Chavez between South Van Ness and Shotwell — an area that sits right at the foot of Bernal Heights, on a plot of land that’s rather high-profile to anyone who looks down upon it from homes on Bernal’s north slope.
On the site of the garage workshops at 1296 Shotwell, a nine-story affordable housing development for senior citizens is in the works. Meanwhile, on the adjacent property at 1515 South Van Ness, the former site of McMIllan Electric (which was, before that, the the glamorous showroom for Lesher-Muirhead Oldsmobile) is set to become a 157 unit mixed-income apartment building. This week, firm renderings were published for both projects.
This is good, because our economy is booming and our population is growing, but housing costs are batshit crazy because we haven’t built nearly enough new housing to accommodate all 864,816 of our fellow San Franciscans. Some high-density, mixed-income housing is just the thing to address that problem, but both these projects will have hurdles to overcome.
Let’s start with 1296 Shotwell. Here’s how the site looked yesterday:

Fashionable! Replacing all this, 1296 Shotwell will become a nine-tory development with 96 affordable units for seniors. SocketSite says it will also be home to 5,000 square feet of community and office space and 5,500 square feet of outdoor space. Here’s how it’ll look on the building’s Bernal-facing south side:

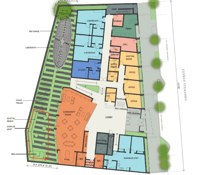
And here’s the proposed site plan:

But about that whole nine-story thing…
1296 Shotwell will be 85 feet tall. For seasoned north-slopers, it’s not too difficult to visualize what a nine-story building will look like on that site; it’ll be just a little taller than the landmark 1940s-era Telco Building on 25th and Capp:

The Telco Building is eight stories, so 1296 Shotwell will be one taller. And what would that look like?
Here’s a crude mockup of a nine-story, 85-foot version of the Telco Building, transposed on the site of 1296 Shotwell. The proposed building would look thinner and more contemporary, but the height of the building rise on the horizon roughly like this:

That’s where things get sticky. SocketSite explains:
As noted in the City’s preliminary review of the project plans, which were drafted by Herman Coliver Locus Architecture, [1296 Shotwell] is currently only zoned for development up to 65 feet in height.
As such, the 1296 Shotwell Street parcel will either have to be legislatively upzoned or the City’s proposed Affordable Housing Bonus Program (AHBP) will need to be passed in order for the development to proceed. Once approved and permitted, it will take another two years to build.
Urp. The Mission Economic Development Agency (MEDA) is one of the nonprofits leading the effort to develop 1296 Shotwell, and MEDA has become synonymous with the Mission District’s progressive political machine. That should help 1296 Shotwell quell some of the usual anti-housing protest antics, but the height issue will be more complicated. Here too, however, MEDA probably has the political connections to secure the variances 1296 Shotwell requires. And with luck, one hopes the mural on the Bernal-facing side of the building will be easy on the eyes.
Meanwhile, the computer-rendering gods have also given us a picture of what is envisioned for 1515 South Van Ness, on the northwest corner of the block. Here’s how it snuggles in alongside 1296 Shotwell:

1515 South Van Ness will be a six-story, 157-unit market-rate development, and the current plans show it looking like this, as envisioned on the corner of Shotwell and 26th Street, looking southwest:

The renderings for 1515 South Van Ness don’t include the nine-stories of 1296 Shotwell, so remember that 1296 Shotwell will rise nine-stories above this near the left side of the image. Also remember: This is what this location looks like today (and wave hello to Bernal Hil)l:

SocketSite has additional details about 1515 South Van Ness:
As designed by BDE Architecture, the proposed development will rise to a height of 65-feet along South Van Ness, stepping down to five stories and 55-feet in height at the corner of 26th and Shotwell.
In addition to a corner 1,100 square foot retail space at Van Ness, the latest plans include six small “trade shop” spaces along 26th Street (and an underground garage for 81 cars and 150 bikes).
And if approved, the development will take roughly two years to build, and 12 percent of the 157 apartments will be offered at below market rates.
The developer behind 1515 South Van Ness is Lennar Urban, the urban-housing arm of megadeveloper Lennar Corporation. By way of comparison, Lennar is the opposite of MEDA is just about every way, because Lennar is a big, nationwide, publicly-traded firm focused on market-rate housing development. That said, Lennar Urban may have what it takes to deal with the Mission’s notorious aversion to housing development and the professional activists who will inevitably find things to dislike in the current proposal.
Lennar is also building housing at the former Hunters Point Naval Shipyard and on Treasure Island – feats which required successfully navigating US Navy bureaucracy, multiple administrations in San Francisco’s City Hall, a nasty mix of toxics left behind by the Navy’s Cold War nuclear-test programs, and Aaron Peskin. Ultimately, Lennar was not deterred by the radioactive swamps of Hunter’s Point or the USS Pandemonium on Treasure Island, so it will be interesting to see how they fare when confronted with the theatrics of the those who prefer to deal with our housing shortage by opposing the creation of more housing.
IMAGES: Renderings and site plans, via the incomparable SocketSite
Shotwell building is too tall. 5 stories is acceptable. 9 is excessive in height for this location.
true
I like them both!
That took all of about 30 seconds before we got a NIMBY comment. I like the renderings and welcome the project to my neighborhood!
They should both be the same height, either 9 stories or 6. Mind as well make them both 9 and add even more housing since they are going to develop this plot regardless.
They should be an even number of stories, like 8! None of this 9 or 6 BS…
The only way we are gong to get people housed is to build housing, and this density will help get us the transit we need in/around Bernal. The variation in height will be easier on the eyes than a monolithic development. I like both projects!
It’s not the end of the world, but 40% over zoning limits is pretty crazy. Sends the message that money and connections can bend just about any law—as if that was news to anyone.
Either way, doubt I’ll be able to see it from my place behind the giant billboard on top the 26th and Mission building.
Could we make the removal of the billboard a negotiating chip. . .Ninth storey only okay if the billboard comes down? . . .
I think both projects are too high and too dense, I believe 6 stories will not make the building stick out like a sore thumb.
Build ’em!
(But these will only exacerbate the chaos created by the Mission red carpet silliness at Cesar Chavez.)
Build them both 9 stories. Where do I sign up to be notified of all relevant regulatory hearings and public comment collections so I can voice my support?
There should be a citywide height minimum of at least 10 stories for lots this size. But that would require electing supervisors who weren’t in the pockets of landlords.
It’s very sad to see the Manhattanization of San Francisco happen right in our backyard. The view from the top of the hill must be preserved. All these new neighbors don’t respect our values. I believe there are gas lines there that if not connected to the building properly could threaten the lives of us all.
think of the children!
I think we have passed Manhattanization of SF already. I think we are now at Tokyo-ication or Hong Kong-ation here. For god’s sake, the air is already as smoggy as Beijing, and people are buried in their electronic devices, completely not respecting the elders around them. I like the grittiness in the urine-smell that tells me that I am surrounded by artists who have soul, and the working class who embody middle class value.
Jack, you obviously have never been to Beijing
I see this was posted on April 1 and can only assume it’s a prank.
I apologize; I should have put a winky emoticon and/or /s for sarcasm at the end of my paragraph.
b: I think my personal feelings, tastes and nonrationale-based opinion should trump my experience in giving unsolicited advice.
The post had *just* enough truth to it that it was hard to know whether to completely dismiss it as sarcasim or take it as someone’s truth. Particularly the part of the artisanal SF urine. I stand corrected 🙂
Your choices are Manhattanization or Los Angelization. I will take density over sprawl and traffic any day.
Or we can close our eyes and pretend that wishing really hard will make population growth stop. I forgot that option
What’s the deal with parking for this building? Will the 9 story version still have the same parking requirements (as required by the city) for new buildings?
Just what I was thinking. They better be going deep underground with oodles of parking spots!!
The 9 story building will have no garage.
Where did you find that info? Seems crazy to me that they would have no parking for a 9-story building, but that houses in Bernal are required to have 1 spot per unit.
It’s senior housing. It’s likely the only additional cars in the neighborhood will belong to a handful of employees.
Seniors drive cars too. This project must provide parking!!!
OK, so in a few years we’re going over the Hill with 5 or 6 or 9 story buildings…. just because, you know. Progress and affordable units within and whatever, and blah! and more Blah! Where are we getting water and sewage for these future indentured servants of Future Frisco?
Pretty sure that’s the new hospital in that rendering… doesn’t look like housing.
Love it. Please don’t let the housing activists block this housing.
We really need to block this project until there is community input. The proposed buildings does not fit the neighborhood…too dense and too high. I would welcome other less ambitious renderings.
This is awesome. Please tell MEDA that they don’t understand the Mission and that people from Bernal need more input and representation on what happens down in the flats. I’m sure Dave Campos is about to propose some new affordable housing up on the hill, maybe next to his house. Please build all of this housing and more. There are plenty of buildings this height around the Mission (see the US Bank building on Mission, the apt on 25th and Bartlett, 22nd and Capp, St. Luke’s just up the street, etc). The public views (from public spaces, such as Precita Park, Bernal Hill) are protected and accessibility is being maximized. I would love to see seniors have some affordable housing and for people who can afford it to move into new places and stop displacing people who have lived in older housing.
So you prefer sticking those seniors in housing outside of the city instead? Define ” too dense” in the context of a city with multiple public transportation options. Cities are dense by definition . There’s no such thing as housing ” too dense” when you are building for a growing population of elders who don’t have enough housing options right now. It’s probably not dense enough, honestly.
I am from NYC so I know the negative side of population density. I would welcome senior housing with losts of open space and trees and easy wheelchair accessible walkways and benches for board games and conversation in a safe surrounding. So, I propose less density so that the seniors will have room to play and not have to dodge the selfish millenniums. Check out the senior buildings around town…no benches, no close bus stops, just a revolving door of people they don’t know. Will this project have a doorman included to protect seniors, some is disabilities?
You do not have to respond,just think about all that is proposed and it’s implications on individuals and communities.
The renderings look very good. It will be a vast upgrade over the blighted, rundown conditions that is in the area now. Instead of building more subsidized housing, a much better plan is to have mixed-use with condos to buy. And best to keep MEDA out of the negotiations, especially since District 9 has greatly improved without their and Supervisor Campos’ help.
Both these projects look great. Love to see some density coming our way. I hope both MEDA and Lennar get these through the entitlements fast. Get these units built!
Pingback: Saturday: Community Meeting About “Great Wall on Shotwell” | Bernalwood
Pingback: Supervisor Campos Seeks to Revive Mission Moratorium on New Housing | Bernalwood