
Late last week, the San Francisco Planning Commission unanimously approved the proposal by Lennar Corp. to build 157 units of mixed-income housing at 1515 South Van Ness (at 26th Street), at the foot of Bernal’s north slope.
The Lennar proposal, which was first proposed two years ago, was approved in the Planning Commission after a 6-0 vote. It will replace the former McMillan Electric warehouse at the corner of South Van Ness and 26th, which was originally built as a dealership for Lesher-Muirhead Oldsmobile:
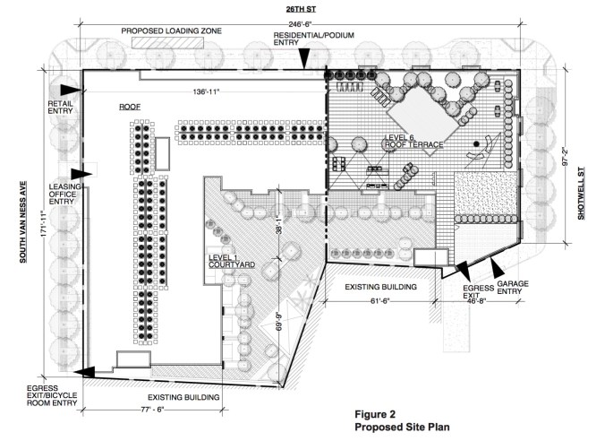
The approved plan for 1515 South Van Ness features a new, 65-foot tall building that includes 157 residential units and 81 basement parking spaces. At street-level on 26th Street, the new building will provide 5,241 square feet of commercial space intended for small-scale “maker” workshop or artist use.


Negotiations with housing opponents resulted in two late changes to the project. First, it was agreed that the project would be constructed with union labor. Second, the quantity of subsidized-affordable housing in the complex was expanded from 12% to 25%.
Despite the unanimous vote in the Planning Commission, it’s still possible housing opponents will leverage their close ties to outgoing D9 Supervisor David Campos to appeal the project at the Board of Supervisors. MissionLocal reports:
The below-market-rate units at 1515 South Van Ness Ave. would be reserved for both low and moderate-income tenants. Fifteen percent of the total units would be available to those making up to 55 percent of area median income, or $53,300 for a family of three, while the remaining 10 percent would go to those making up to 100 percent of area median income, or $96,950 for a family of three.
Speakers [at the Planning Commission Meeting[ were divided roughly half in support and half against, some saying the project was just one of many needed in San Francisco to curb soaring rental costs and put a dent in the city’s — and neighborhood’s — housing crunch.
“As much as some folks might want, it is not possible to address the Mission District’s housing problem by putting a wall around [the neighborhood],” said Tim Colen, the departing director of the Housing Action Coalition, a pro-development advocacy group.
Planning commissioners heeded those calls on Thursday, saying the project had reached a good affordability level and approving it unanimously. Negotiations will continue between opponents and the developer, and opponents said they were not sure whether they would appeal the project but hoped to avoid the step and reach a deal instead.

Build it!
Build it! Build it! Build it!
Pingback: Campos Blocks New Housing at 1515 South Van Ness | Bernalwood
Pingback: Mayor Lee Visits Site of Proposed Homeless Center at 1515 South Van Ness | Bernalwood
Pingback: Thursday: Second Meeting on Planned Homeless Facility at 1515 South Van Ness | Bernalwood