
Last Thursday, July 21, the San Francisco Planning Commission unanimously approved a proposal by a Bernal-based developer to build four new homes on an undeveloped lot between Powhattan Ave. and Bernal Heights Blvd. by rejecting a request for discretionary review filed by neighbors opposed the development.

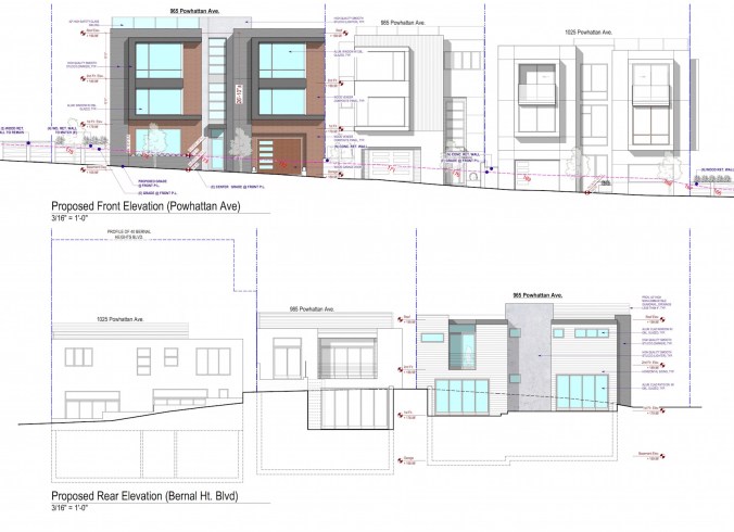
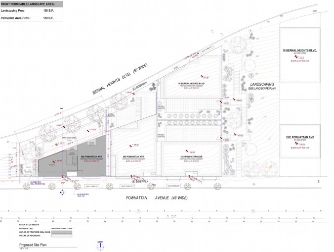
The proposal calls for the construction of three new family-sized homes at 965, 985, and 1025 Powhattan, and one new home behind them, at 40 Bernal Heights Boulevard. The project will also include a new public stairway that will follow the path of the undeveloped Carver Street, which runs just east of the site.

The official summary of the project, and the request for discretionary review, was as follows:
40 BERNAL HEIGHTS BOULEVARD/965, 985, 1025 POWHATTAN AVENUE- the triangular-shaped project site is bounded to the south by Powhattan Avenue, to the north by Bernal Heights Boulevard, to the west by an undeveloped portion of Rosenkranz Street, and to the east by an undeveloped portion of Carver Street; Lot 010 in Assessor’s Block 5640 (District 11)- Request for Discretionary Review (DR) of building permit application Nos 2014.0521.6382; 2014.0521.6394-6396, proposing subdivision of Block 5640 Lot 010 to create four new separate lots and construction of one three-level single-family dwelling on each new lot within a RH-1 (Residential House, One-Family) Zoning District, Bernal Heights Special Use District and 40-X Height and Bulk District. This action constitutes the Approval Action for the project for the purposes of CEQA, pursuant to San Francisco Administrative Code Section 31.04(h).
The Bernal neighbors who opposed the new housing framed their concerns mostly in terms of preserving “neighborhood character”:
A group of more than 150 neighbors has filed for a Discretionary Review with the SF Planning Commission on the 4 large luxury homes to be developed along Bernal Heights Boulevard and Powhattan Avenue. The hearing before the SF Planning Commission on this development is scheduled for Thursday, July 21, 2016 at approximately 1 pm in Room 400 at City Hall. Join us at the hearing to let your voice be heard.
We are greatly concerned about this development in part because:
- The proposed development, in its totality, is out of context and scale with the established character of the Bernal Heights Neighborhood and sets a precedent for denser development.
- The proposed homes are not consistent with Planning Code, Residential Design Guidelines, Bernal Heights East Slope Building Guidelines, and General Plans (e.g. there are no Front Yard Setbacks).
- Safety Issues: Because there are no front yard Setbacks, a driver pulling out will be unable to check for pedestrians and traffic before crossing the sidewalk and entering the street.
Prior to the meeting, an analysis by Planning Commision staff determined that the proposed housing “meets all aspects of the Planning Code,” and that it’s “consistent with the scale and character of the immediate neighborhood,” and that it “meets the [Bernal Heights East Slope Building Guidelines].”
After much discussion and debate, all six of the the Planning Commissioners agreed, and the request for discretionary review was denied. A few minor revisions to the project were requested. That means construction on four new homes in Bernal Heights may begin soon. But this is San Francisco, of course, so who really knows?
SITE PLANS: Planning Department analysis for 965 Powhattan
So…the proposed three-story houses are out of character with the existing three-story houses on adjacent lots? Huh.
Everyone is against the very idea of houses except for the one they live in.
I don’t believe that is an accurate reflection of events. The Planning Commission took the Discretionary Review and made requests for changes to the plans.
In addition, the article neglected to reflect that the developer has been harassing neighbors and that there is photographic evidence that he repeatedly stripped down all of the neighborhood notices regarding the public meeting discussions. Not a good strategy to produce good will.
If the photographic evidence exists, why didn’t you send it to Bernalwood?
Hi Todd, thanks for the suggestion.
The multiple photographs were on display during the DR hearing, so those that were present would have seen it there. Luckily, the SF Government TV website records all hearings, so you can find a video of the discussion, and thus the photos at this website: http://sanfrancisco.granicus.com/ViewPublisher.php?%20view_id=20
Please refer to the video for the July 21, 2016 meeting and the Discretionary Review Hearing for the Powhattan Triangle project is item 9 on the Agenda for the afternoon meeting. The DR discussion starts at approximately 35:09. . . . the photos of the developer ripping signs at approximately 01:08:23.
Ripping down signs is a separate matter from following Code and building houses. IF the developer ripped down the signs, pursue the matter in the appropriate venue. Even jerks are allowed to conduct business. This is just another inappropriate attempt to thwart fair and legal development.
not surprising… that developer only seems to know how to attack and insult, from what I hear. Not that that has any bearing on the project, mind you… but I do feel sorry for the neighbors who are going to have to deal with the guy.
Rollin rollin rollin, keep those cameras rolling! heh rawhide!
TLDR version: If they leave the guy alone they won’t “have to deal with him.”
I don’t want to seem like a defender of a–holes or anything, but actually those neighbors DON’T “have to deal with the guy” if they don’t want to. They could just acknowledge that the alleged jerk has followed the Rules and gotten approval and leave him alone to do what he should be allowed to do. In the abstract, I sympathize with the people who will lose views and a scenic empty lot. It has happened to me before. But when you abuse the system to try to gain unfair advantage, YOU are the bad guy.
Consider the other side of the debate. Put yourself in the shoes of someone who follows all the rules and receives approval, yet is still hounded by neighbors whose concerns aren’t fair. The process is so skewed that they can hold you up indefinitely, costing you more time and money, keeping you from employing workers, and possibly killing your project altogether, with no cost or ramifications to themselves. All your work and planning can be lost. You can give an inch and know for sure they will come back for a mile because they CAN and have nothing to lose by trying.
That might make me bitter enough to tear down some illegally posted flyers. It’s easy to forget that there are humans on the other side of the issue.
@takebackthegreen Believe, they will have to deal with the guy… he’s that kind of guy. I said nothing about the project itself, the moral or political issues, or any perceived injustice on either side, did I?
No you certainly didn’t, Snobby. (Off-topic aside: I’ve always meant to say how much I appreciate the reasonableness and civility of your comments. You seem interested in discussions rather than brow-beating. I don’t know you outside this forum, but I feel like I would like and/or respect you.)
My (reluctant) point was that even if the developer IS as bad as you say (and I believe you), that still has no bearing on this development and its legality. Even A-holes have rights.
It certainly makes it harder on him, since it IS so difficult for most of us to separate the personality from the issue; and I might secretly laugh at him getting his karmic payback. BUT we, as a free and civil society, have to defend the rights of the unloveables most of all.
Insert any number of exemplary parables here.
Also, maybe there is a reason he is such an allegedly nasty piece of work? IMHO, nothing excuses nastiness. But there might have been a cause…and it might have been the type of things our neighbors are doing, which are legally allowed but morally corrupt, and very costly.
Our planning system needs reform. I wish I were smart enough, and wise enough to formulate solutions.
Will all the planned buildings be single family homes? Is there any accomodation for low income housing?
They are four single family homes. There is no low-income requirement for a developments with so few units
Hi Todd, great suggestion regarding providing the link to the photographs. The series of photographs were on display during part of the presentation by the neighborhood representatives at the Discretionary Review hearing on July 21. The video recording of the meeting can be found on the San Francisco Government TV link here: http://sanfrancisco.granicus.com/ViewPublisher.php? view_id=20
The Discretionary Review Hearing for the Powhattan Triangle project is item 9 on the Agenda for the afternoon meeting of July 21. The DR discussion starts at approximately 35:09. . . . the series of photos of the developer ripping the signs occurs at approximately 01:08:23 of the video.
Bernalwood, please check your sources and correct your reporting. The Planning Commission did not unanimously approve this development project. Instead, they voted unanimously to take Discretionary Review — something they do only rarely — and asked the developer to make certain changes that reflect Bernal Heights East Slope Design Review Guidelines, which the original plans ignored. Until the designer makes those changes, and those changes are approved by the Planning Department, no permits will be issued.
Isn’t there a really large gas pipeline right underneath that area? Did anyone bring up the safety of digging and building right over a huge gas pipeline?
Donna, there is a big water main that runs up Nebraska St., turns left on Powhattan, and then turns right onto unimproved Rosenkranz St. at the narrow end of the Bernal-Powhattan triangle. Because it runs under Rosenkranz — not under one of the lots slated for development — the Planning Commission did not consider it an issue. However, the topic did come up during public comments, and the commission questioned the developer at length about the water main and about a related pressure release valve, currently located on the developer’s property. Apparently the city water department understands it will need to relocate that valve to the Rosenkranz end of the triangle, which is city property.
The gas line goes up Folsom on the south side, around the hill along Bernal Heights Blvd and down Alabama on the other side, turning right at Precita Park Cafe and then northward along York.
https://www.pge.com/en_US/safety/how-the-system-works/natural-gas-system-overview/gas-transmission-pipeline/gas-transmission-pipelines.page
150 neighbors complain. shame on you all,
the only sad thing is that you will all be rewarded for your ridiculousness with higher home values after these are built. (assuming you own).
i walk this street about once a week and look forward to the calming effect that actual homes and driveways will put in the subconscious of those that seem to think it is a speedway and put pedestrians at risk (likely the same neighbors requesting a DR).
build baby build!
Am I naive to go about most days trusting that the appropriate government agencies of San Francisco wouldn’t allow homes to be built over any dangerous pipelines, and can do their work just fine without me there to interfere in the minutiae of every project?